Petäjärinne 6, 37470 Vesilahti
Omakotitalo 5h, et, tk, k, rt, oh, kph, s, khh, 2wc, vh
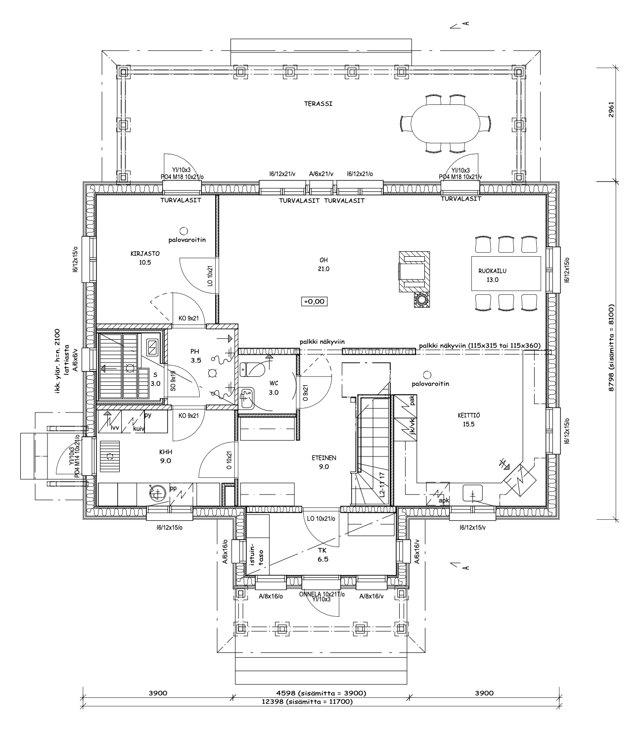
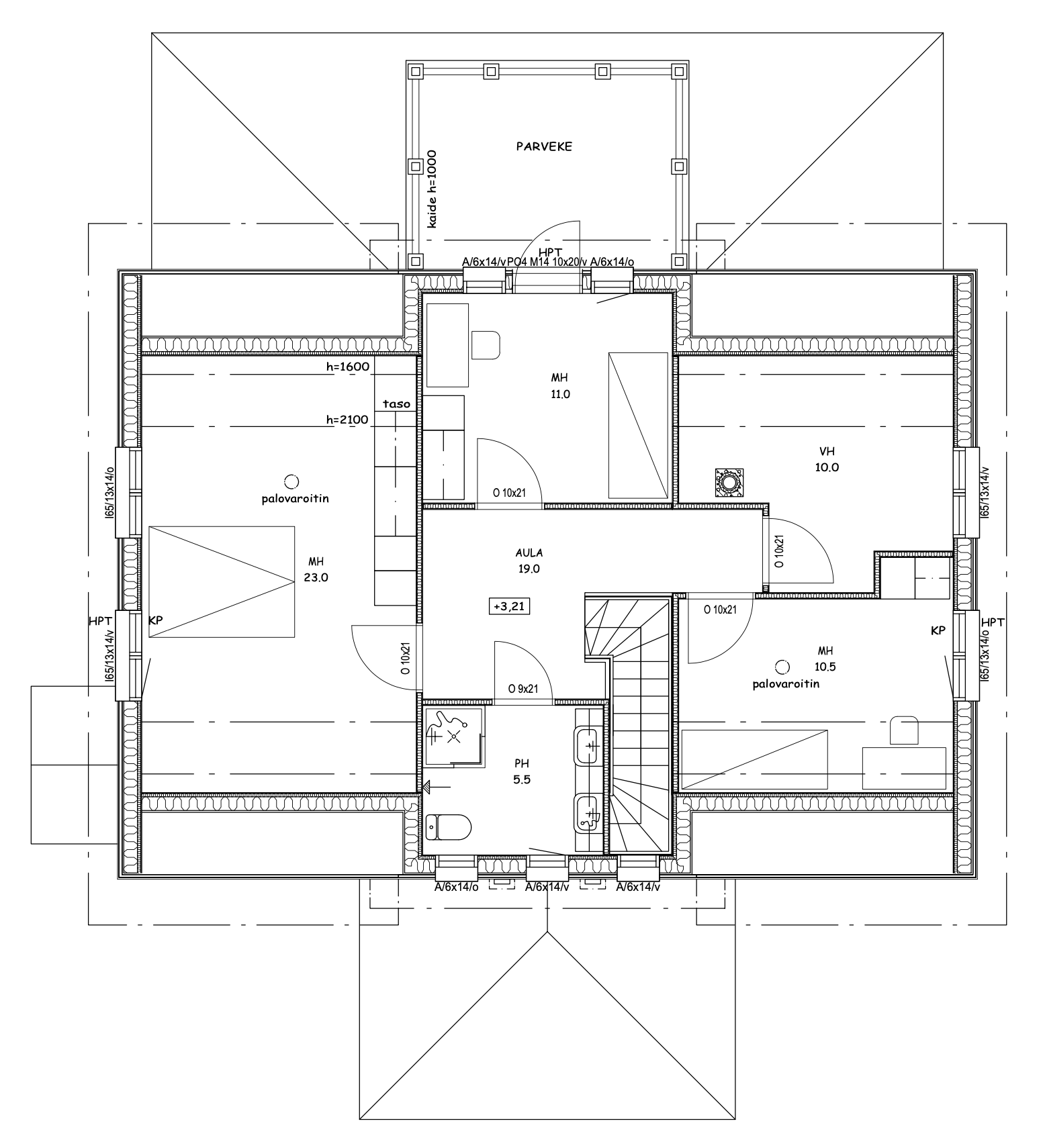
Moderni ja energiatehokas unelmakoti Vesilahden sydämessä Tämä vuonna 2014 valmistunut upea kokonaisuus tarjoaa huoletonta asumista omalla 1524 m² tontilla Vesilahden Kirkonkylällä. A-energialuokan koti lämpiää edullisesti maalämmöllä, ja varaava takka tuo tunnelmaa sekä lisälämpöä viileisiin iltoihin. Kokonaisuuteen kuuluu päärakennuksen lisäksi erillinen 44,5 m² talousrakennus, jossa on autotalli, varasto ja katos yhdelle autolle. Autotallin nurkalla on lisäksi kokonaisuuteen sopiva erillinen puuvaja. Pohjaratkaisultaan avara ja valoisa koti on suunniteltu palvelemaan sujuvaa arkea. Laadukas Puustellin keittiö AEG:n kodinkoneilla on kodin sydän, joka kutsuu yhteisiin ruokahetkiin. Keittiön yhteydessä on ruokailutila, johon sopii suurempikin ruokailuryhmä. Ruokailutilan ja olohuoneen keskellä on takka, jonka tunnelmasta nautit molemmissa tiloissa. Kaikkiin tiloihin tulvii valoa suurista ruutuikkunoista. Kylpyhuoneen ja saunan vieressä on kodinhoitohuone, jossa on reilusti tilaa pyykkihuollolle ja sälytykselle. Kodinhoitohuoneesta on erillinen uloskäynti, jonka yhteydessä on kurapiste. Talon tontti on todellinen helmi. Takapihan suojaisa terassi kutsuu rentoutumaan ja omassa paljussa viihtyy niin perheen pienimmät kuin suurimmat. Tontti rajautuu kauniiseen, rinteessä kohoavaan viheralueeseen, josta voit poimia metsämansikoita ja mustikoita. Rinne toimii monipuolisena maastona lasten leikkeihin ja talvisin se muuntuu pieneksi pulkkamäeksi. Lähipalvelut, kuten ruokakaupat ja kirjasto, löytyvät parin kilometrin säteeltä ja päiväkoti ja koulu sijaitevat alle 1,5 kilometrin etäisyydellä. Julkiset liikenneyhteydet sujuvat myös vaivattomasti lähellä sijaitsevien bussipysäkkien ansiosta. Talousrakennuksen autotalli, autokatos ja varasto antavat mukavan lisän säilytykselle. Erillinen kaivo takaa kasteluveden riittävyyden pihapiirissä ja DNA:n 5G-yhteys pitää huolen nykyaikaisista etätyömahdollisuuksista. Tämä koti on täydellinen valinta sinulle, joka arvostat laatua, energiatehokkuutta ja rauhallista sijaintia lähellä palveluita. Tervetuloa tutustumaan – ota yhteyttä ja sovitaan esittelystä! Lisätiedot ja yksityisesittelyt: Ilona Lähde LKV Sisustusarkkitehti 0505057778 ilona.lahde@glik.fi Glik Tampere Oy LKV Keskustori 7 33100 Tampere Tutustu tietosuojakäytäntöömme www.glik.fi/rekisteriseloste
1-3kk kaupanteosta
Takka: Varaava takka
Seinämateriaali: tapetti
Varusteet: laminaatti, jääkaappi, pakastin, induktioliesi, erillisuuni, liesituuletin, mikroaaltouuni, integroitu astianpesukone
Puustelli keittiö ja AEG kodinkoneet
Seinämateriaali: laatta
Varusteet: suihku, kiinteät valaisimet, kaksi suihkua, lattialämmitys
Lattiamateriaali: laatta
Seinämateriaali: maalattu, tapetti
Varusteet: lattialla oleva wc, lattialämmitys, lattiakaivo, suihkukaappi, peili, allaskaappi, bidee
Lattiamateriaali: laatta
Seinämateriaali: paneeli
Varusteet: sähkökiuas, lattialämmitys, lattiakaivo, led-valaistus, ikkuna ulos
Seinämateriaali: tapetti
Varusteet: lastenhoitopöytä/taso, kuivauskaappi, uloskäynti, lattiakaivo, pyykkikaapit, kurapiste, pesuallas, pöytätaso, kuivausrumpu, lattialämmitys, pesukone
Seinämateriaali: Tapetti
Seinämateriaali: maalattu
Lisätietoa rakennuksesta: Talousrakennuksessa autotalli, lämmin varasto ja yhden auton katos. Rakennusluvan myöntämisvuosi: 2013, rakentamisvuosi 2013, käyttöönottovuosi 2014 ja loppukatselmus 2018. Rakennusluvan/rakentamisluvan mukainen pinta-ala: 44.5 m² Rakennuksen pääasiallinen rakennusmateriaali on puu ja siinä on peltikatteella vuorattu harjakatto
Suunnitteletko asuntosi myyntiä vai haluatko jättää sen omaksesi ja laittaa vuokralle?
Meillä on avuksesi tehokkaat ratkaisut molempiin tarpeisiin.
Asunnon maksuttoman hinta-arvioinnin avulla voit selvittää asuntosi oikean myyntihinnan nyt, tämän hetken markkinatilanteessa. Olemme onnistuneet 98 % tarkkuudella asuntojen hinta-arvioinneissa.
Jos mietit asunnon vuokrausta, tutustu vuokravälityspalveluumme ja vuokranantajan huolenpitosopimukseen, jossa hoidamme kaikki vuokra-asiat puolestasi. Kustannustehokkaan palvelun hinta on 33 €/kk/asunto (sis. alv.).
Kuvat kohteesta




































